Skoč na navigaci

Plánovaná podoba nového domu - nerealizovaná varianta

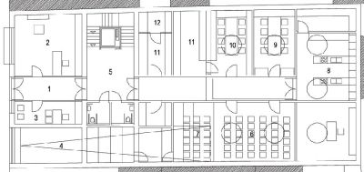
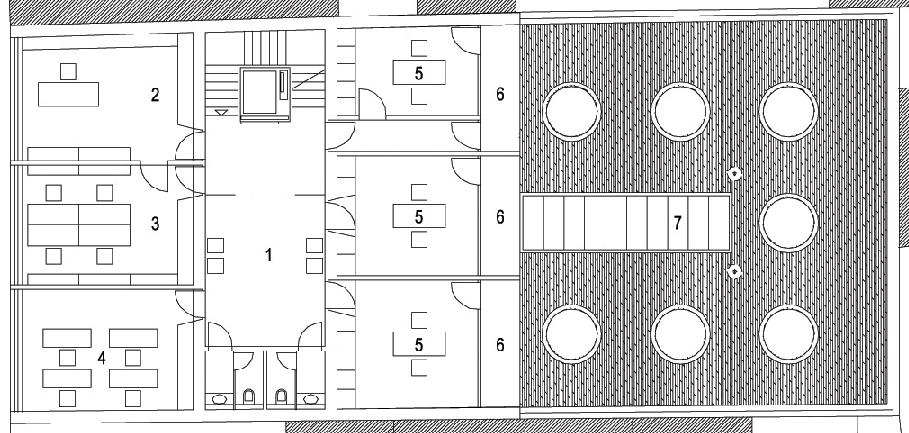
Suterén

Podsklepení celého prostoru pro zbudování technického zázemí, tělocvičny a parkovacích míst

návrh suterénu

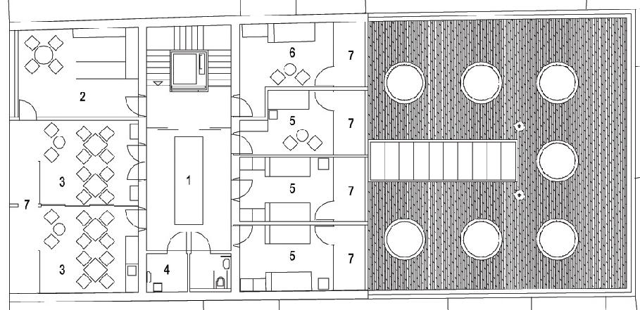
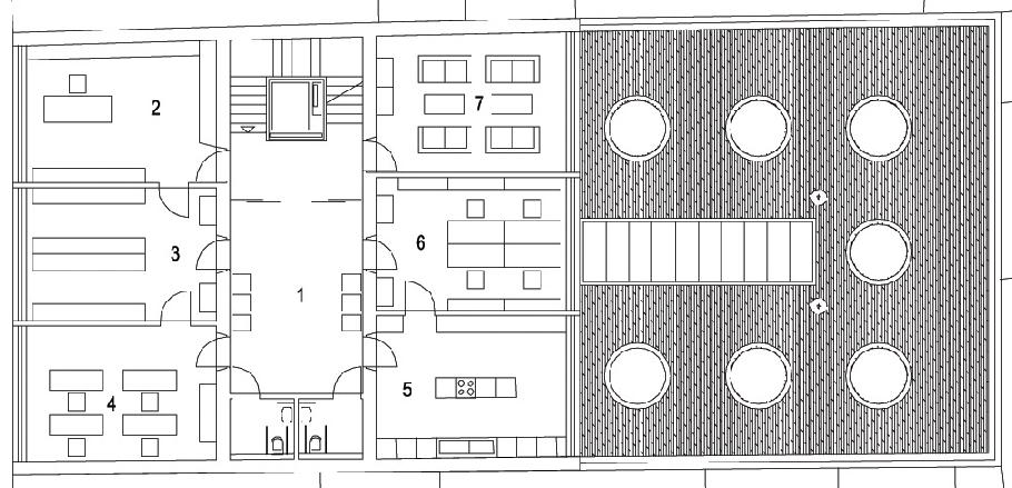
Přízemí

Zastavění celé plochy pro denní centrum s dílnami, učebnami a víceúčelovou konferenční místností.

návrh přízemí

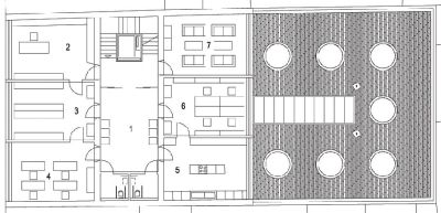
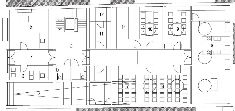
1. patro

Technické evaluační ICT centrum pro osoby se specifickými potřebami.

návrh 1. patra

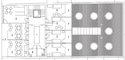
2. patro

Rehabilitace, poradna, kompenzační pomůcky.

návrh 2. patra

3. patro

Ubytovací část se společenskou místností.

návrh 3. patra

Zpět na Projekt

Veškeré připomínky zasílejte na adresu info@centrumpronevidome.cz
K jakémukoliv užití textů a obrázků, uveřejněných na tomto serveru, je třeba souhlas provozovatele.
Prohlášení o přístupnosti | © TyfloCentrum Brno, o. p. s. 2005-2021


Hostováno na WEDOSu
TyfloCentrum Brno, o.p.s. - logo návrat na úvodní stranu